Putting a stop to sheep lice
Sheep producers are being encouraged to adopt strong biosecurity practices to prevent introducing lice into their flocks.
Lice detections at saleyards often spike...
Next phase for hydrogen
WHYALLA - The State Government’s Hydrogen Jobs Plan has secured development approval for the hydrogen plant in Whyalla, with site works expected to begin...
Council offer waste pickup
WHYALLA - The Whyalla City Council has sent out a reminder to the community regarding kerbside dumping.
A recent audit of 50 properties with...
Striking support for star
WHYALLA - Local cafe Whisk Away is donating one dollar for every coffee sold in August and September to support a young soccer star.
Sixteen-year-old...
Set to ride this weekend
PORT AUGUSTA - If you have enjoyed watching the equestrian events from the Paris Olympics, including Australia’s own Chris Burton who brought home a...
Set to ride this weekend
PORT AUGUSTA - If you have enjoyed watching the equestrian events from the Paris Olympics, including Australia’s own Chris Burton who brought home a...
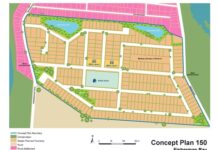
Rezoning Fisherman’s Bay
PORT BROUGHTON - A proposal to rezone underutilised land into residential to accommodate 266 additional houses near the existing Fisherman Bay settlement, is now...
What’s on around the Spencer Gulf
Discover what is happening around the Spencer Gulf in the coming days.
WHYALLA
COMMUNITY BARBECUE
LIONS CLUB OF WHYALLA - Saturday, August 24, One Stop Foodland, 8.30am-1pm,...
Concern over steelworks
The Whyalla Steelworks has come under a cloud of uncertainty amid growing concerns about the plant’s future.
On August 14, GFG axed close to...
Recognition for local lawyers
PORT PIRIE - The Law Society of South Australia has announced the inaugural Regional Lawyer of the Year is Lachlan McAuliffe, from Port Pirie.
He...















